Upper Level Property

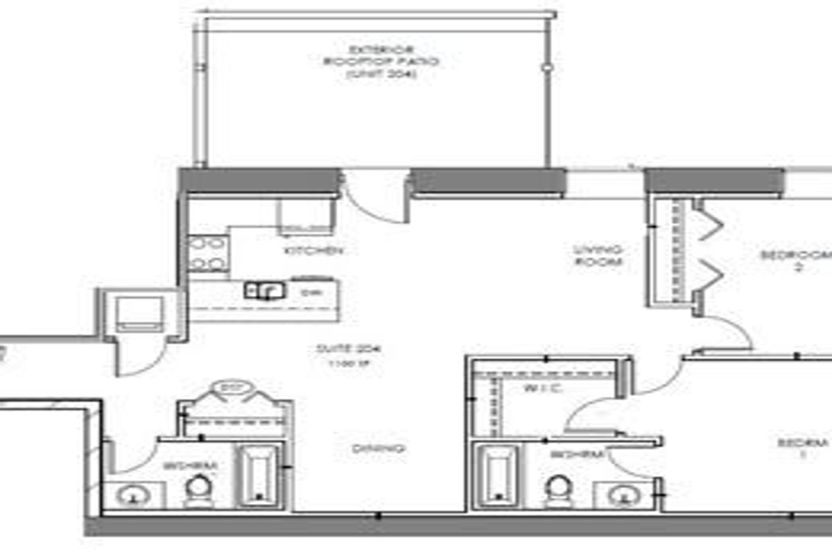
35-39 main Street #204, Cambridge

Details

Property ID
X12633936
Status
Leased (On market for 30 days)
Property Type
Upper Level
Style
Apartment
Area
700-1100 SqFt
Basement
None
Air Conditioning
Central Air
Heating Type
Forced Air

Description

Welcome to Granite Lofts, located at 35 Main Street in the heart of historic downtown Galt, Cambridge. This unique heritage building blends early 20th-century industrial charm with modern loft-style living. Step inside to soaring ceilings, exposed brick and beam architecture, oversized windows, and open-concept layouts that flood each unit with natural light. Carefully restored and thoughtfully updated, these lofts feature modern kitchens and con temporary finishes that highlight the character of the original structure. Located just steps from the Grand River, trendy cafes, art galleries, and boutique shopping, Granite Lofts offers both convenience and culture. With easy access to trails, transit, and key commuting routes, this location is ideal for professionals, creatives, and those looking for a vibrant urban lifestyle with a touch of history. Parking passes to be purchased through the City of Cambridge for any of their downtown lots. Authentic loft. Style units with exposed brick and timber beams. One bedroom, open-concept layouts with high ceilings and large windows. Modern kitchens with quartz countertops and stainless-steel appliances. In-suite laundry and secure building access. Walkable to shops, restaurants, and the Gaslight District. Easy access to Highway 401 and public transit ...

Continue Reading Show Less

Amenities

Location of the Property

35-39 main Street, Cambridge, ON N1R 1V6

Community Sold Statistics

Ave Sold Price

Ave Days On Market

Based on last 90 days transactions for Upper Level Properties in the community.

Sales Representative
Office: (416) 901-5700

You like this property? Receive new, similar ones in your inbox.

We will also update you on other related information such as similar sold properties and market reports

Subscribe Now
Must be logged in to see the sold history
List Date Transaction List Price Sold/Leased Price DOM Status Transaction Date

More About 35-39 main Street #204

35-39 main Street is a Residential Property located in the city of Cambridge. 35-39 main Street has been listed For Lease at $2,290 since Dec 15 2025. This Upper Level Upper Level has 2 bedrooms, 2 bathrooms and is 700-1100 sqft. , with the nearest intersection being Water St.

Listing Brokerage: FOREST HILL REAL ESTATE INC.

}